Plan et visite des salons
Recevoir dans le charme d’une propriété de famille.
Rien d’impersonnel à « Bois le Roi », chaque salon a gardé son caractère, ses boiseries, tomettes d’époque, vastes cheminées… Un cadre authentique et chaleureux.
Tous les salons sont communicants. Ils s’ouvrent sur la cour intérieure ou sur le parc, et se prêteront magnifiquement à vos ambiances personnalisées, à vos travaux de groupe… › voir plus de photos
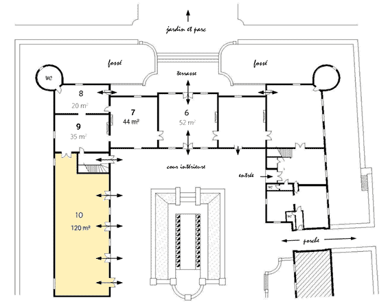
Beau volume de 125 m2 , jusqu’à 125 personnes assises, 200 en cocktail, 160 en conférence


Le salon directoire ouvre sur le parc et la cour intérieure.
Découvrez le Salon Directoire en 360°


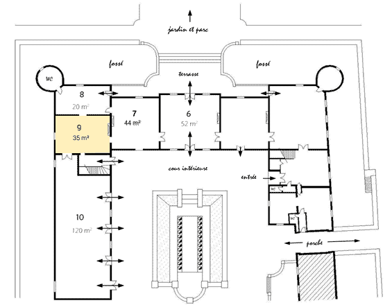
Le salon Louis XVI, l’un des salons à votre disposition.

Le salon Louis XIV et ses boiseries d’époque.

Recevoir dans le charme d’une propriété de famille.
Rien d’impersonnel à « Bois le Roi », chaque salon a gardé son caractère, ses boiseries, tomettes d’époque, vastes cheminées… Un cadre authentique et chaleureux.
Tous les salons sont communicants. Ils s’ouvrent sur la cour intérieure ou sur le parc, et se prêteront magnifiquement à vos ambiances personnalisées, à vos travaux de groupe… › voir plus de photos
Consulter les tarifs
